- A.B.S. - Pelletsilo Flexilo Mini with sucking pot/snail box Normal price Away 695,63 €Basic price /Not availableLimited stock
- Atmos - Atmos pelletilo with a compact design for efficient pellet storage Normal price Away 410,45 €Basic price /Not availableIn stock
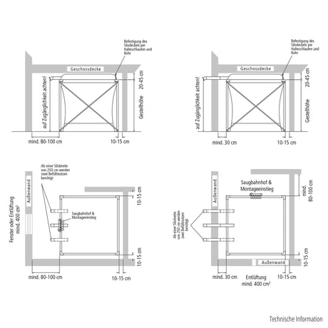
- A.B.S. - Pelletilo flat floor including frame Normal price Away 2.928,16 €Basic price /Not availableIn stock
- A.B.S. - Pelletilo for outside including frame Normal price Away 7.648,84 €Basic price /Not availableIn stock
 
             
        
           
             
             
             
             
             
             
             
             
 
         
         
         
         
         
         
         
         
         
         
                     
                     
                    